SCIA ENGINEER
Skip navigation
Projects
References
About Us
Contact
Skip navigation
Legal
| Deutsch
Consultancy
Design
Optimisation
Submission
Building physics
Statics/Dynamics
Execution planning
Habitation + Living
Projects
>
Solid structures
>
Residential buildings, conversion, renovation
>
Berisha 2016
>
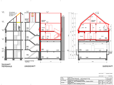
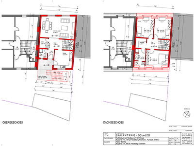
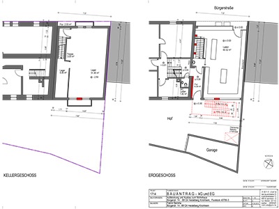
Details: Berisha 2016
Please click on one of the pictures to open the full size gallery.
<<
Go back