SCIA ENGINEER
Skip navigation
Projects
References
About Us
Contact
Skip navigation
Legal
| Deutsch
Consultancy
Design
Optimisation
Submission
Building physics
Statics/Dynamics
Execution planning
Industry + Trade
Projects
>
Special structures
>
Advertising and facades
>
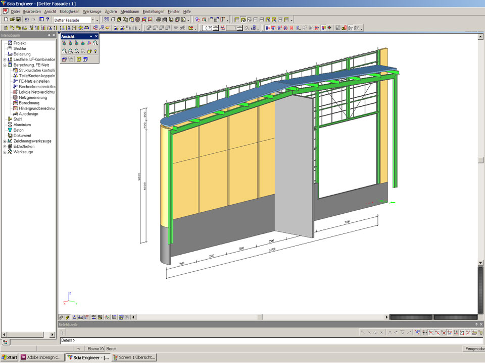
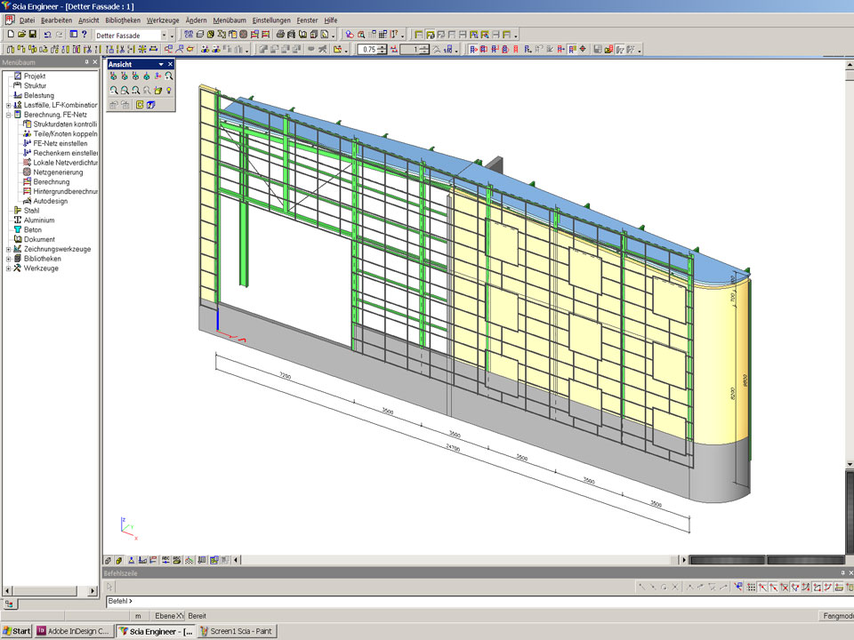
Co. Detter Schwetzingen 2009
>
Details: Co. Detter Schwetzingen 2009
Please click on one of the pictures to open the full size gallery.
<<
Go back