SCIA ENGINEER
Skip navigation
Projects
References
About Us
Contact
Skip navigation
Legal
| Deutsch
Consultancy
Design
Optimisation
Submission
Building physics
Statics/Dynamics
Execution planning
Industry + Trade
Projects
>
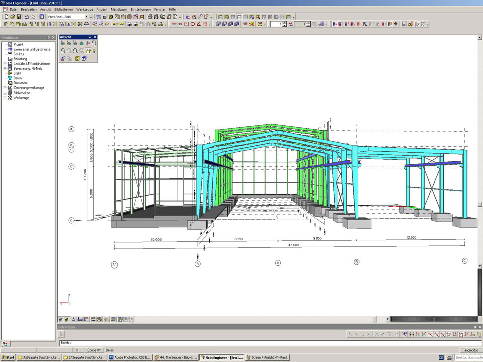
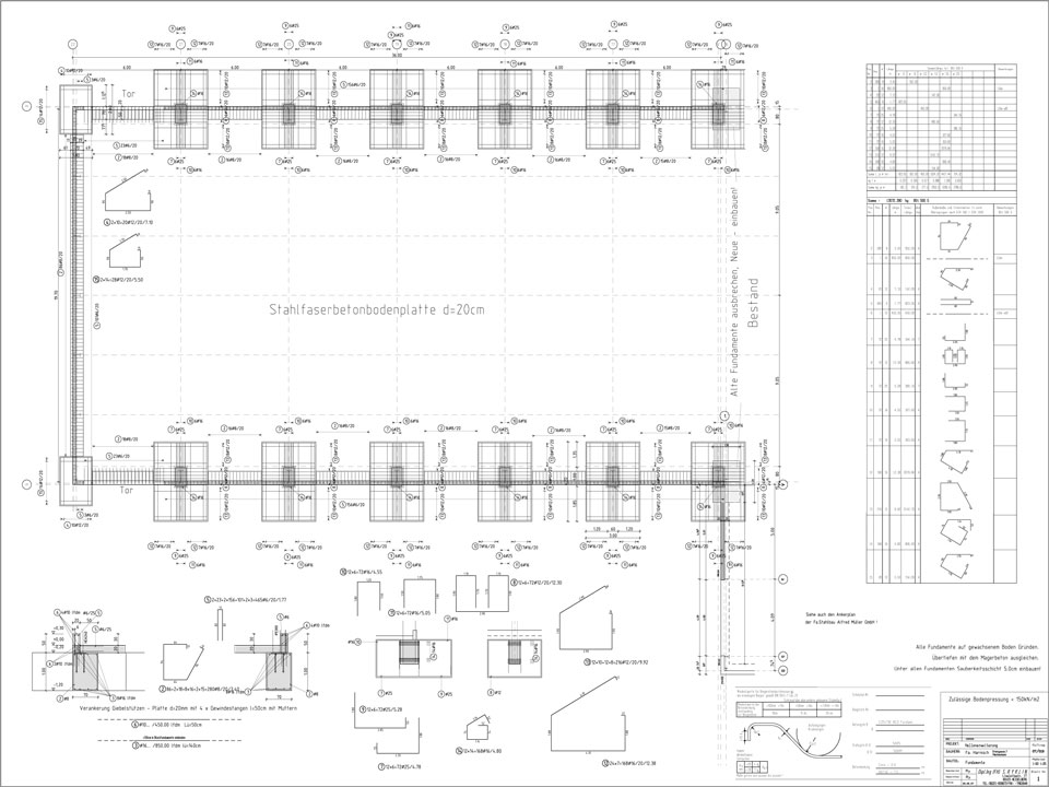
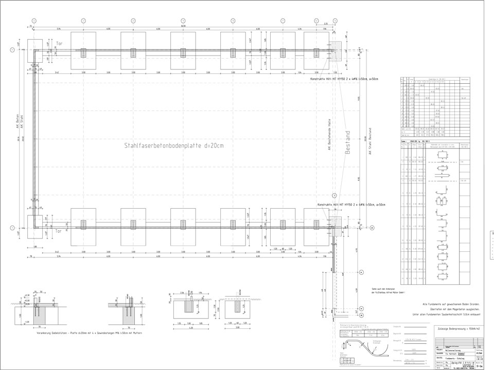
Metal Structures
>
Industrial and Storage Halls
>
Fa. Harnisch Mauer 2005-09
>
Details: Fa. Harnisch Mauer/HD 2005-09
Please click on one of the pictures to open the full size gallery.
<<
Go back