SCIA ENGINEER
Navigation überspringen
Projekte
Referenzen
Über Uns
Kontakt
Navigation überspringen
Impressum
| English
Beratung
Entwurf
Optimierung
Baueingabe
Bauphysik
Statik/Dynamik
Ausführungsplanung
Industrie + Gewerbe
Projekte
>
Sonderbauten
>
Geländer, Treppen, Zäune
>
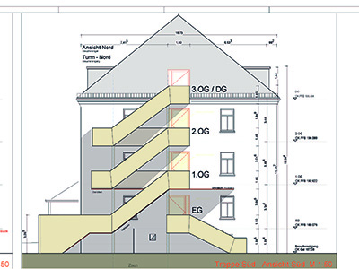
2016 Fluchttreppe Heilbronn
Fluchttreppe Heilbronn 2016
Bauherr:
Generalplanung:
Tragwerksplanung:
Statik:
Ausführungsplanung:
Ausführende Firma:
>>
Details