SCIA ENGINEER
Skip navigation
Projects
References
About Us
Contact
Skip navigation
Legal
| Deutsch
Consultancy
Design
Optimisation
Submission
Building physics
Statics/Dynamics
Execution planning
City + Landscape
Projects
>
Special structures
>
Banisters, stairs, fences
>
Primary school Ramberg stair 2009
>
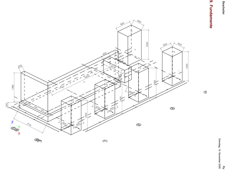
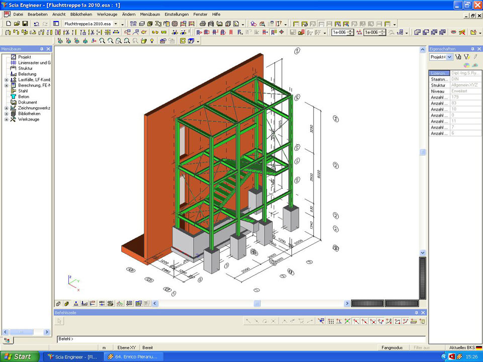
Details: Primary school Ramberg stair 2009
Please click on one of the pictures to open the full size gallery.
<<
Go back