SCIA ENGINEER
Skip navigation
Projects
References
About Us
Contact
Skip navigation
Legal
| Deutsch
Consultancy
Design
Optimisation
Submission
Building physics
Statics/Dynamics
Execution planning
Industry + Trade
Projects
>
Metal Structures
>
Spiral stairs
>
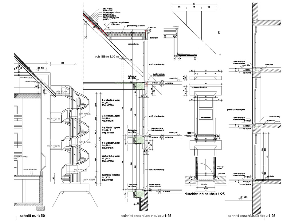
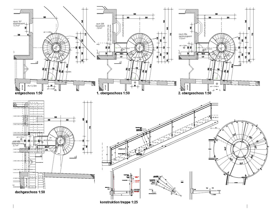
Rathaus Östringen emergency stairs 2018
>
Rathaus Östringen emergency stairs 2018
Please click on one of the pictures to open the full size gallery.
<<
Go back