SCIA ENGINEER
Skip navigation
Projects
References
About Us
Contact
Skip navigation
Legal
| Deutsch
Consultancy
Design
Optimisation
Submission
Building physics
Statics/Dynamics
Execution planning
Culture + Leisure
Projects
>
Metal Structures
>
Bridges and stages
>
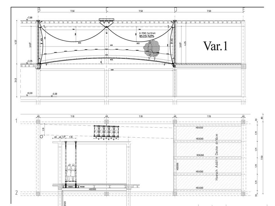
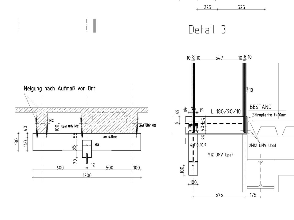
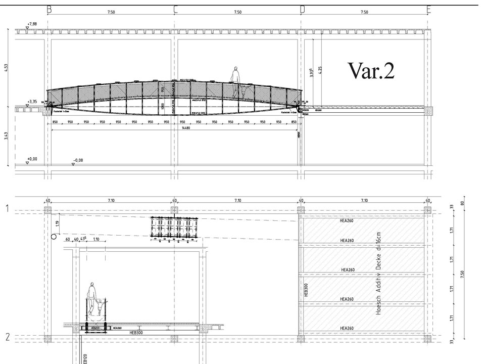
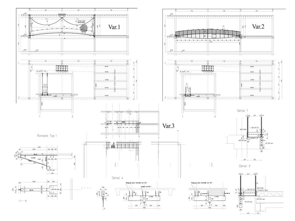
Stadtbücherei Heidelberg 2002
>
Details: City library Heidelberg 2002
Please click on one of the pictures to open the full size gallery.
<<
Go back