SCIA ENGINEER
Skip navigation
Projects
References
About Us
Contact
Skip navigation
Legal
| Deutsch
Consultancy
Design
Optimisation
Submission
Building physics
Statics/Dynamics
Execution planning
Industry + Trade
Projects
>
Metal Structures
>
Industrial and Storage Halls
>
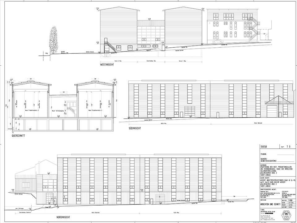
Wickert Landau expansion crane hall 2018
>
Details: Wickert Landau expansion crane hall 2018
Bitte klicken Sie auf eines der Bilder, um die Galerie zu öffnen.
<<
Go back